ARAMA
Şehir Kameraları Kent Rehberi Nöbetçi Eczaneler
WhatsApp Destek Hattı Hemen Yazın

ilan

Geri

ilan

14 Nisan 2026

-İLAN-

 

 

 

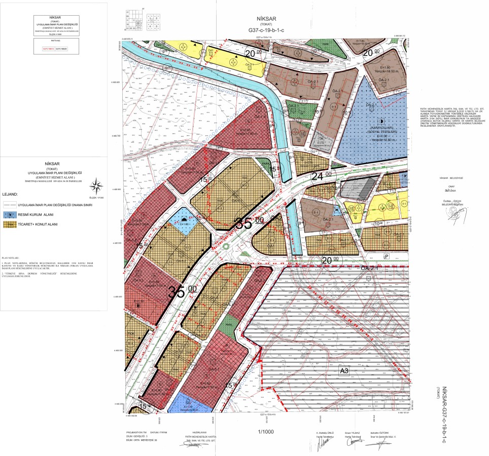
NİKSAR BELEDİYE BAŞKANLIĞINDAN

 

 

3194 Sayılı İmar Kanununun 8. maddesi ve mekansal planlar yapım yönetmeliğin 26., 31., VE 32. maddeleri gereğince, BELEDİYE MECLİSİMİZİN 07.04.2026 TARIH VE 71 SAYILI KARARI ILE ONAYLANAN İLÇEMİZ İSMETPAŞA MAHALLESİ 109 ADA 54 VE 58 NOLU PARSELLERİ EMNİYET HİZMET ALANI VE TİCARET+KONUT ALANI AMAÇLI PLAN DEĞİŞİKLİĞİ 14.04.2026 – 14.05.2026 tarihleri arasında belediye giriş katına asılmıştır.

 

İlgililere ilan olunur.

 

 

 

 

Niksar Belediye Başkanlığı